Sonnige Dreizimmerwohnung mit Garten in Montan
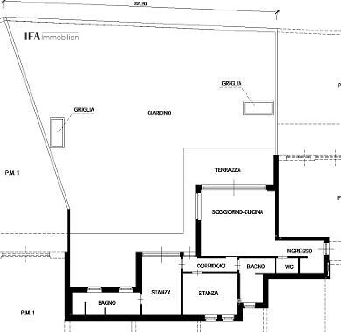
Im Erdgeschoss eines kürzlich erbauten Mehrfamilienhauses erwartet Sie diese großzügige Dreizimmerwohnung mit über 200 m² eigenem Garten – perfekt für alle, die das Leben im Freien und absolute Ruhe schätzen.
Der Eingangsbereich empfängt Sie mit viel Licht und einem Garderobenbereich, während das große Wohn-Esszimmer mit offener Küche direkt in den Garten führt – ideal für gemütliche Abende und entspannte Momente. Der Schlafbereich bietet zwei geräumige Doppelzimmer sowie einen praktischen Arbeitsbereich im Hauptschlafzimmer, der ursprünglich als zweites Badezimmer geplant war und sich perfekt für Homeoffice oder Hobbys eignet.
Die drei Badezimmer, darunter ein kleiner Hauswirtschaftsraum, sind modern und funktional gestaltet.
Abgerundet wird das Angebot durch einen Kellerraum sowie zwei Einzelgaragen im Untergeschoss, welche jeweils zum Preis 32.000 € separat erworben werden können.
Eine einmalige Gelegenheit, in einem modernen, hellen Zuhause mit viel Außenbereich zu leben!
Kontaktieren Sie uns noch heute, um mehr zu erfahren!













